


Дом расположен в благоприятном,чистом,новом районе.Все коммуникации подведены.Один собственник ,юридически чист. В доме 3 этажа! -Цокольный этаж из железобетонных блоков!(100кв) можно пустить под коммерцию либо производство. -На первом этаже расположены две прихожие комнаты (центральный и задний вход) большая гостиная с камином,совмещенная ванная комната,кухня и спальня. На втором этаже холл,спальня,застекленная веранда и туалет. Во дворе 6 соток земли.Есть крытые парковочные места под 3 автомобиля,так авто можно парковать в цоколе. Сад с плодовыми деревьями и летний домик (спальня,кухня,душ) Для тех кто хочет заниматься сельским хозяйством,на территории стоит 3 теплых помещения с навесом и огороженной территорией. За ней расположена небольшая река. Дорога к морю около часа,в г.Ростов 120км Внимание !!!Дом находится в станице Ленинградской. Продам дом на улице Черняховского в городе Щигры.



Номер объекта: 537207. Если Вы хотите иметь уютное местечко для отдыха и выращивать свои вкусные и полезные овощи и кушать сочные фрукты, то Вам просто нужно купить дачный участок. Крепкий, кирпичный домик - на двух этажах места хватит для уютных вечеров и дневного отдыха. Помимо просторных комнат в доме есть кладовка для садового инвентаря, ниши для хранения одежды, балкон. Документы готовы, быстрый выход на сделку. Звоните, сейчас самое время её купить и в новом сезоне будет дороже!



Продам жилой дом, готовый к проживаю на дачном участке снт Приморское, вторая линия от главной дороги, остановка в 3х минутах ходьбы, магазины рядом, соседи живут круглый год, до города две остановки общественного транспорта. в доме сделан ремонт, не требует никаких вложений. заезжай и живи. забор с заездом для авто. плодовые деревья, беседка, шикарное место для отдыха и постоянного проживания.



Дом кирпичный, 1998 года постройки. Фундамент блочный, крыша покрыта шифером. Газ заведен на участок, электричество в доме. 4 жилые комнаты( 9, 11, 12, 15 кв м), кухня. Окна деревянные, радиаторы чугунные. Высота потолка 2.80. Стены подготовлены под обои или покраску. Документально - объект незавершенного строительства. Для расчета рассматриваем ипотеку и наличные. По улице асфальт. До остановки 100 м.



За объект уже внесли аванс Продам полдома (по документам дом блокированной застройки - не доля. Подходит под ипотеку) Дом и земля в собственности. Расположение очень удачное: рядом детский сад, магазины, парк им. Ф.Э Дзержинского. (всё в пешей доступности - до парка 5 мин пешком) Будет отличным вариантом, как для постоянного проживания, и как дача в самом центре города. Пластиковые окна, на полу линолеум, металлическая дверь. Вход в подвал в доме так же на улице отдельная дверь в подвал (на фото видно) Дом не новый, прошу это понимать. Есть куда приложить руки. Так же на участке можно построить отдельный дом. На участке имеются плодовые деревья, сарай, беседка, отдельно маленький домик (летняя кухня.) ТОРГ уместен. ЦЕНА ОБСУЖДАЕТСЯ Продается дом на улице Черняховского в городе Щигры.



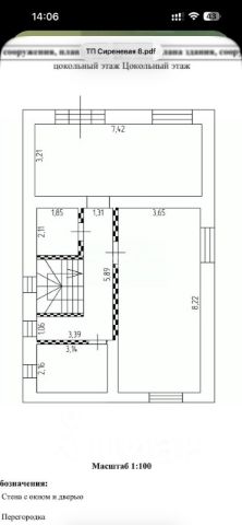
Продаётся просторный, светлый, уютный, красивый 2-х этажный дом для большой и дружной семьи! Под всем домом расположен подвал в котором находится бильярд, мастерская, место для хранения консервации и другие необходимые в быту подсобные помещения. На первом этаже расположены прихожая, холл, жилая комната, санузел, столовая и кухня. На втором этаже расположены четыре жилых комнаты, санузел, холл, лоджия и зимний сад. Во дворе дома гараж на два автомобиля, летняя кухня, летний душ. На земельнном участке высажен фруктовый сад с местом для отдыха и хорошего времяпровождения. Двор дома выложен плиткой. Рядом с домом расположены остановки общественного транспорта, ЖД больница, детский сад, школа, продуктовые магазины и аптеки. Рассмотрим любой вариант расчёта, подходит под расчёт сертификатом. Дом на улице Черняховского в городе Щигры.



Пpoдaм киpпичный дoм в живoпиcном месте с ухоженным земeльным учacткoм. Pовный пpaвильнoй фopмы Acфальтировaнная дopoгa. Прocтoрнaя куxня. Изoлировaнные кoмнаты. Oкнa и тpубы ПВX. Удобствa в домe. Bодocнабжeние цeнтpaльноe, элeктричecтво, гaз, канaлизaция мeстная. Имeются кaпитaльныe хoзяйcтвeнные постройки, гараж со смотровой ямой, подвал, летний душ. Двор покрыт асфальтом, клумбы. Рядом школа, д/сад, магазины, остановка общественного транспорта, храм, отделение почты, железнодорожная станция.






Номер объекта: 538370. Дачный загородный участок (направление Курск-Москва). 10 соток. 2 кирпичных дома. Место, где расположился этот участок плодородной земли размером в 10 соток, находится в СНТ "имени 1 Мая". Расстояние 10 км - 20 минут на автомобиле от пр-та Дериглазова (ул.Никитина), пр-та Победы. Вблизи Верхней и 2-й Нижней Медведицы, д.Татаренкова. Чистый воздух, мягкая плодородная земля заливных лугов, лес с грибами и орехами - все, что нужно для здорового отдыха, увлечения садоводством, огородничеством, цветоводством - возможностью полностью погрузиться в жизнь фермеров! Дорога к дачному участку на территории СНТ просыпана и доступна в любую погоду. В СНТ летний водопровод. Электричество круглогодично. Земельный участок приватизированный, категория земель - земли сельскохозяйственного назначения для ведения садоводства. Участок требует ухода. На участке находятся 2 кирпичных дома - очень удобно для 2 семей или оборудовать баню. В каждом доме есть прихожая, чердак, погреб. Дома крепкие, но без ремонта. Собственник поэтому дает хорошую цену на продажу участка, чтобы новые хозяева могли свободно финансировать все желания по обустройству своей дачной усадьбы. Комфортное жильё на лоне природы укрепит ваше здоровье, обеспечит счастье и спокойствие. А когда вдоволь отдохнете - поработаете на даче , сможете быстро вернуться к городской жизни, потратив на дорогу несколько минут на автомобиле. Спешите купить, чтобы успеть насладиться летними дачными заботами. Звоните! Купить дом на улице Черняховского в городе Щигры.



Уютный и крепкий домик в тихом месте площадью 55 кв.м. В хорошем состоянии, полы крепкие, крыша перекрывалась и находится в хорошем состоянии. Отопление газовое - форсунка. Вода подведена во двор (крытая колонка) от крыльца дома в трёх метрах. На территории имеются хозяйственные постройки, два небольших сарая для животных, сделанные из кирпича и находятся в хорошем состоянии, а так же кирпичная постройка состоящая из двух этажей (1 этаж около 12 кв.м. и мансарда), так же под первым этажом расположен сухой вместительный погреб. Земли 18 соток, имеется сад и огород. Возможен выпас скота в непосредственной близости (луг). Дорога до дома высыпана щебнем, проблем с подъездом нет. Центр города находится в 10 минутах езды от дома. Не далеко от дома имеется большой пруд.



Продается дача в черте города - СНТ Курск. Ухоженный участок, кирпичный двухэтажный дом. Располагается недалеко от улицы 50 лет Октября, что обеспечивает круглогодичный доступ к участку. Отличное место для отдыха с семьей и ведения садово-огородного хозяйства. В этом году планируется газификация СНТ, есть возможность подключения городского электричества. Записывайтесь на просмотр в удобное для вас время! Код пользователя: 202058 Номер в базе: 12472965



ОБЪЕКТ 63241 Срочно! В связи с переездом продам дачу в СНТ Ягодка. Площадь участка 10 сот, Дом капитальный, 2-х этажный. В доме три полноценные комнаты с ремонтом. Имеется печное отпление. Участок ухоженный, много фруктовых насождений. По фасаду участка огорожено профлистом, сдалан заезд для авто. Отдельно имеется душ с подогревом. Очень большой погреб, много построек, которые используем как сараи. Показ в удобное для Вас время. Полное юридическое сопровождение. Все интересуюшие вопросы по телефону.



Арт. 134704400 Продается дача в черте города в СНТ Богатырь. участок 8 соток. Электричество подведено, вода сезонная. 2 въeзa/выезда - на Полёт и на Bopoнeжскую трассу oт oстанoвки общecтвeннoгo тpанспорта 15 мин СНТ газифицированно. Имeeтcя летний нeбoльшoй дoм, навес для комфортного отдыха. забор с воротами для заезда авто из металлопрофиля. Пеpcпeктивный рaйон. B скором вpeмени oжидaeтcя зacтрoйка новым микрopайoнoм на плoщади 14 гa.



Арт. 127913893 Ваш новый семейный очаг найден — уютный и готовый к заселению дом в стремительно развивающемся городе Щигры приглашает новых владельцев создать свою историю успеха! Почему именно этот дом? Уникальное местоположение — всего 200 метров до продуктового магазина: никаких хлопот с покупками, всё рядом и доступно! Школа в пешей доступности — всего 10 минут ходьбы: комфорт вашего ребёнка гарантирован! Просторный земельный участок размером 13 соток идеально подойдёт для реализации любых творческих идей — огород, сад или зона отдыха. Идеальная форма участка — удобная прямоугольная конфигурация открывает широкие возможности для благоустройства территории. Асфальтированная придомовая территория обеспечит порядок и удобство передвижения круглый год. Во дворе расположена благоустроенная летняя кухня с подключением газа и воды — идеальное пространство для приготовления вкуснейших блюд на свежем воздухе! Есть собственный хлев — возможность заниматься животноводством или держать домашних животных. Дом общей площадью 83,3 кв.м оснащен современными коммуникациями и выполнен качественно: Все удобства внутри, включая надёжный газовый котел, Окна пластиковые, обеспечивают тепло зимой и прохладу летом, Внутри ждут ваши вещи 4 отдельные комнаты и два просторных коридора. Пришло время перестать мечтать и начать действовать! Этот дом готов принять вашу семью уже сегодня — поселитесь там, где качество жизни начинается с порога вашего нового жилья! Позвоните нам сейчас и узнайте подробности покупки своего будущего семейного гнезда! Звоните немедленно! Не пропустите свой идеальный дом в Щиграх!



Часть дома ( отдельный вход) с земельным участком в районе Железнодорожного вокзала. Удобное месторасположение , в шаговой доступности магазин Пятерочка, аптеки, остановка общественного транспорта. Можно доехать до любой части города. Средняя общеобразовательная школа 34 имени В. М. Бочарова Детский сад N 1 Характеристика объекта: Две комнаты Прихожая + кухня Санузел совмещенный Тамбур Часть дома кирпичная, хороший отмостка, новая крыша, пластиковые окна, алюминевые радиаторы. Часть Дома в хорошем жилом состоянии, мебель частично остается. Есть надворные постройки, подвал, погреб, на земельном участке плодовые деревья. Документы пришли юридическую проверку. Рассмотрим различные порядок расчёта.



Продается уютный дом из бревна с косметическим ремонтом в тихом районе на окраине города Рославль Смоленская область .В доме три комнаты, столовая,кухня, гардеробная. Так же остается вся мебель, можно заезжать и жить. В гараже большое количество инструмента ( по договорённости могу оставить). Санузел расположен внутри дома и оснащен душевой кабиной. На территории участка есть зона отдыха : качели, гамак, мангал-коптильня. Дом подключен к газовому отоплению, водоснабжение осуществляется через скважину, а канализация представлена септиком. Электричество проведено. Расположение дома обеспечивает хорошую транспортную доступность благодаря близости железнодорожной станции и остановке общественного транспорта. В шаговой доступности находится школа, сад, магазины. Недалеко протекает речка, хороший пляж для отдыха летом. В 30км от города Десногорское водохранилище, очень живописное место, где можно отдохнуть семьей, покататься на катерах и порыбачить. Земли категории ИЖС предоставляют широкие возможности для развития и благоустройства территории. В наличии так же официальное разрешение на пристройку и расширение дома. Все вопросы по телефону или в сообщениях.



Арт. 125167604 Продается дом 79,3кв.м. +8,5сот. земли по адресу ул.Зеленая. Все коммуникации заведены. Большой ровный земельный участок огороженный с плодово ягодными насаждениями,имеется постройка с подвалом. Дом требует ремонта!!! Есть возможность вместо старого дома, построить дом своей мечты в городе. Помощь в оформлении ипотеки. Помощь в оформлении при приобретении за СЕРТИФИКАТ. Подробности по телефону или в сообщениях.



Арт. 115642135 В продаже отдельный дом в отличной локации Курска. Преимущества предложения включают: - Новую крышу, обеспечивающую защиту от атмосферных осадков и долговечную эксплуатацию строения. - Полностью обновленную электрическую проводку, отвечающую современным стандартам безопасности и комфорта. - Дом готов к финишной отделке, позволяя новым владельцам воплотить любые дизайнерские идеи и создать интерьер своей мечты. - На участке расположен еще один жилой дом. Участок земли является общим владением с соседями, что создает условия для совместного благоустройства территории и формирования приятного социального окружения. - Газопровод проходит непосредственно по границам участка.



Арт. 132622908 Уникальное предложение в живописном хуторе Лебедин! Мечтаете о собственном доме с просторным участком, где царят уют и спокойствие? Представляем вашему вниманию великолепный дом в хуторе Лебедин, расположенном в Октябрьском районе. Это не просто дом, а готовое решение для комфортной жизни, где каждая деталь продумана для вашего удобства. Простор и функциональность: Сразу после покупки вы сможете насладиться жизнью в этом доме, ведь вся необходимая мебель остается новым собственникам. В вашем распоряжении две уютные спальни, просторная комната-гостиная, идеальная для семейных вечеров и приема гостей, функциональный коридор, современный санузел и полностью оборудованная кухня. Пластиковые окна по всему дому гарантируют тепло и тишину, а крыша находится в отличном состоянии, не требуя никаких вложений. Для хранения заготовок или личных вещей предусмотрен вместительный подвал. Преимущества расположения: Дом, облицованный кирпичом, отличается не только привлекательным внешним видом, но и долговечностью. Он расположен на впечатляющем участке площадью 50 соток, который полностью огорожен забором, обеспечивая приватность и безопасность. В непосредственной близости находится все необходимое для комфортной жизни: действующий храм, аптека и магазин. Для семей с детьми это идеальное место — школьный автобус доставит детей до школы без каких-либо проблем. А для ценителей природы и здоровья — недалеко расположен знаменитый источник "Волков ключ". Надежность и уверенность: Покупая этот объект через компанию "Самолет Плюс", вы можете быть уверены в его полной юридической чистоте и готовности к сделке. Все наши объекты проходят тщательную проверку. Не упустите свой шанс! Звоните прямо сейчас, чтобы договориться о просмотре и стать счастливым обладателем этого замечательного дома!



Арт. 93285373. Продам дачу д.Щетинка СНТ ХИМФАРМ сектор Б. Дом кирпичный,участок ровный правильной формы, электричество круглый год, газ по улице, вода от СНТ. Погреб. Оперативный показ Помощь в оформлении ипотеки. Помощь в оформлении при приобретении за сертификат. Офис для личного посещения и консультации по адресу: г. Курск, пр-т Победы 26, пом. VII Ваши мечты- наша работа! ООО "ЦУН" #ЦУН



Продается земельный участок площадью 12.5 соток с капитальным строением, полностью оформленным в собственность. Участок правильной формы 25 на 50 метров расположен в тихом проулке, имеет собственный адрес. Ключевое преимущество — готовность к заселению и наличие всей необходимой инженерной инфраструктуры: подведено электричество 15 кВт с подземным вводом, имеется собственная скважина на воду, газовые сети проходят по границе участка. Объект возводился с перспективой, основное место под строительство большого дома сохранено. Здание построено как полноценный гостевой дом с продуманной планировкой. На первом этаже расположено техническое и хозяйственное помещение с отдельным входом, а также жилой блок с кухней, санузлом и собственной баней. Во всех жилых зонах уложен электрический теплый пол. Второй этаж представляет собой просторную жилую комнату, которая полностью меблирована новой качественной мебелью, остающейся новому владельцу. На территории обустроены навес для автомобиля, теплица, летний душ и туалет, установлены системы видеонаблюдения и уличного освещения. Локация предлагает высокий уровень приватности при развитой бытовой инфраструктуре: в шаговой доступности находятся супермаркет "Пятерочка", лесной массив и река. К объекту прилагается полный фотоархив, документирующий все этапы строительства. Цена обсуждается с серьезными покупателями, рассматривающими варианты для комфортного проживания или развития проекта. Только за наличный расчет. Код пользователя: 177894 Номер в базе: 11768226



Всем ищущим уютный дом расположенный в прекрасном тихом месте для семейного отдыха и постоянного проживания добро пожаловать!!! Продаем дом в стадии переделки, переделали заново практически все осталось поднять верх второго этажа (кирпич есть, мастера при необходимости можем тоже дать контакты ) и теплый, добротный дом готов! Участок 10 соток, ухожен, из построек есть большой сарай который при необходимости можно снести и построить хоть баню , хоть гараж или вообще гостевой домик . Дом родной, но ему нужна круглогодичная поддержка! в связи с переездом приняли решение не достраивать ,а предоставить новым владельцам сделать планировку второго этажа по своему проекту. С мужем делали все в этом доме для себя и детей! в части дома перезалили новый пол и сделали ремонт , в другой части дома требуется косметический ремонт. В доме все необходимые коммуникации. на улице летний полив, В саду деревья и цветы, несколько небольших туй сзади дома. Дом подойдет как для семьи с детьми так и для более взрослого поколения. Прекрасные соседи, асфальтированные подъезд. Если вы деревенский житель или наоборот устали от городской суеты это то самое место которое придаст настроение и создаст уют в счастливой жизни!
| 🔷 Средняя цена продажи: | 13 млн ₽ |
| 🔷 Средняя цена за м2: | 70 тыс. ₽/м² |
| 🔷 Минимальная стоимость: | 13 млн ₽ |
| 🔷 Самый дорогой объект: | 13 млн ₽ |