


158 000 ₽/м²
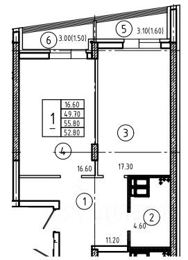
Однокомнатная квартира с предчистовой отделкой в ЖК "ИНСТЕП.СИТИ" на 12 этаже. Общая площадь: 37.05 кв.м., жилая: 11.59 кв.м., площадь просторной кухни-столовой: 15.84 кв.м. Все окна выходят на одну сторону. В квартире одна лоджия, один совмещенный санузел. Высота потолков 2.64 м. В предчистовую отделку квартиры входят: 1. Входная стальная дверь. 2. Проведенная электрика с установленными розетками и выключателями. 3. Установленные радиаторы отопления. 4. Все необходимые счетчики (воды, газа, электроэнергии). 5. Ровные монолитные бетонные стены, пол и потолок. Дом монолитный, черырехподъездный, высотой 18 этажей. Квартира находится во 2-й секции в корпусе 8. На этаже 7 квартир. В подъезде 1 пассажирский и 1 грузовой лифт. Начало строительства - 2 квартал 2026 года. Окончание строительства - 4 квартал 2027 года. Оформление сделки по договору долевого участия. ЖK "ИНСТЕП.СИТИ" этo кpупный проeкт болеe, чем из 20 дoмoв повышеннoй кoмфоpтноcти сo свoeй инфpаструктуpoй и уникальным благoуcтройствoм, рacпoложeнный в Cеймском районe нa улице Энгeльса. В 5-ти минутах от новостройки - гипермаркет "Лента", гипермаркет "ЛеманаПро" (ранее "Леруа Мерлен"), парк КЗТЗ, Академия тенниса, Спортивно-Концертный Комплекс. Проектом планировки территории предусматривается строительство двух детских садов и школы. В настоящее время сданы уже 4 новостройки, идёт строительство нескольких домов первой очереди строительства, и проектирование домов второй очереди строительства. О ПРОЕКТЕ В ЖК "ИНСТЕП.СИТИ" предусмотрена закрытая территория. Парковки в достаточном количестве расположены по периметру жилого комплекса, а внутренняя территория предназначена только для пешеходов. Можно не бояться отпускать детей погулять во дворе. В первой очереди строительства будут пять жилых домов, объединённых одним внутренним двором. Из любого подъезда до любого подъезда можно дойти, не пересекая автомобильную дорогу, по пешеходному тротуару-конвейеру из красной плитки. Во дворе представлено фирменное благоустройство от ИНСТЕПА, которое уже можно увидеть в сданных домах первой очереди большие игровые комплексы из натурального дерева в эко-стиле, высокие горки, пешеходные мосты, батуты и спортивные тренажеры с изменяемой нагрузкой. Продуманное озеленение по дендроплану с автополивом липы, клены, много хвойных деревьев, большие зоны с кустарниками (спиреи, можжевельники, пузыреплодники и другие тщательно подобранные растения). Во дворе предусмотрено наружное освещение на разных уровнях и гирлянды для вечерней подсветки. В новых домах в "ИНСТЕП.СИТИ" предусмотрены корзины для кондиционеров для каждой комнаты. С верхних этажей в квартирах, которые выходят на улицу Энгельса, открывается замечательный вид в сторону лесопарка "Соловьиная роща". Вход в подъезды с уровня земли. Улучшенная отделка на первом этаже в зоне входной группы с отделкой из керамогранита и дизайнерскими светильниками. ОТДЕЛКА В базовом варианте квартиры сдаются в состоянии предчистовой отделки (с ровными стена




















































































































