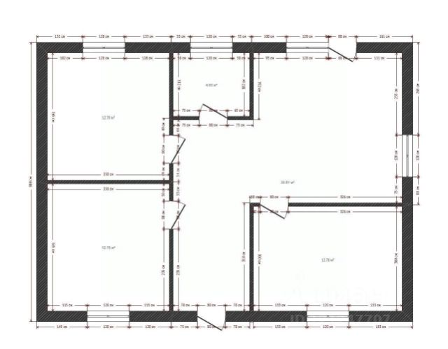
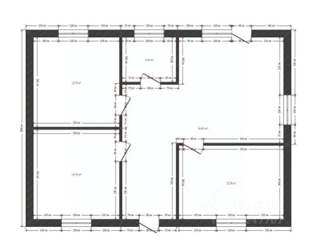
В продаже уникальный дом по проекту общей площадью 92 м², расположенный в тихом и живописном районе! Подходит под все виды ипотек! Дом под отделку white box (предчистовая) предоставляет вам возможность создать пространство, отражающее ваш стиль и предпочтения. В доме две спальни, одна ванная комната, просторная кухня-гостиная. Надежный ленточный фундамент гарантирует долговечность и устойчивость вашего нового жилья. Крыша из металлочерепицы премиум-класса и качественные деревянные перекрытия с утеплением создают комфортный микроклимат круглый год. Высота потолков наполняет пространство светом и воздухом, а механизированная штукатурка и утепленная стяжка пола обеспечивают дополнительный комфорт. Современный котельный узел с двухконтурным турбированным котлом и системой теплого пола создаёт уют в любое время года. Окна с улучшенным профилем гарантируют отличную тепло- и шумоизоляцию, а электропроводка выполнена в соответствии с нормами ГОСТ и СНИП, что обеспечивает безопасность вашего дома. Входная группа и терраса из бетона придают дому стильный и современный вид. Помогаем с одобрением ипотеки! Стоимость указана без цены участка! Код пользователя: 202058 Номер в базе: 12497841















































































